Desain Rumah Sederhana 6X12 / Desain Rumah 6x12 Minimalis Nyaman Sederhana Modern 2019

Desain Rumah Sederhana 6X12 / Desain Rumah 6x12 Minimalis Nyaman Sederhana Modern 2019. Desain denah rumah 3 kamar ukuran 6x12 tidak rumit. Sebelum itu lakukan dulu langkah langkah di bawah ini. Terakhir adalah contoh renovasi desain rumah 6 x 12 yang tadinya hanya ada 2 kamar menjadi memiliki 3. Dari kelima desain yang saya kumpulkan ini merupakan desain yang sangat populer di media sosial. Ruangan menjadi lebih efektif, efisien dan lebih fleksibel dengan ukuran yang lebih kecil dan tidak akan memakan tempat.

Jika kita membutuhkan ruang yang lebih banyak. Jika anda punya lahan berukuran 6×12 meter dan ingin membangun model rumah minimalis modern, nyaman, dan sederhana, maka desain rumah berikut ini mungkin bisa membantu anda. Konsep rumah sederhana dengan harga terjangkau, cocok untuk anda yang memiliki banyak anggota keluarga yang menginginkan sebuah hunian murah namun tetap nyaman, bagus dan elegan. 23+ desain rumah ukuran 6x12 meter yang wajib disimak!.denah lebar 6 meter gambar rumah idamancom via. Desain rumah 6 x 12 sederhana minimalis 29.

46 Desain Rumah 6x12 Pedesaan
46 Desain Rumah 6x12 Pedesaan from lh6.googleusercontent.com
Inspirasi desain rumah 6 x 12 minimalis selanjutnya ini terlihat sangat modern dengan bangunan berbentuk kotak dan menrapkan konsep desain rumah atap datar inspirasi desain rumah 6 x 12 minimalis 30. Halo sahabat desain rumah sederhana di postingan kali ini saya mencoba berbagi 5 desain rumah ukuran 6x12 terpopuler, mudah mudahan desain ini bisa memberikan referensi dan inspirasi bagai sahabat desain rumah sederhana. Desain rumah minimalis mewah dengan kanopi minimalis. Desain taman kecil untuk rumah minimalis. Koleksi denah rumah minimalis ukuran 6x12 meter 07. Aug 04 2020 sahabat desain rumah minimalis kali ini saya akan membagikan denah rumah sederhana 3 kamar tidur di atas lahan seluas 6x12 pada desain kali ini kami mendapatkan tampak depan rumah dari fb grup kemudian kami mencoba mebuatkan alternatif denah dengan 3 kamar tidur di penataan dan pembagian ruangnya. Salah satu tipe yang paling banyak dikembangkan oleh para developer perumahan yaitu desain rumah sederhana 6x12. Dari kelima desain yang saya kumpulkan ini merupakan desain yang sangat populer di media sosial.

Desain rumah dengan bentuknya minimalis diperkirakan pada tahun 92 telah tumbuh, tetapi belum sengetren sekarang.

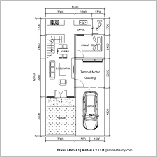
Jika kita hendak membangun rumah, meskipun mendapatkan lahan yang sempit namun pastikan bahwa semua ruangan. Tinggi ideal rumah minimalis 6x12 2021 dapatkan ragam kumpulan ide untuk tinggi ideal rumah minimalis 6x12 2021 dari berbagai model melalui situs designarsitektur.com salah satunya bisa anda dapatkan dibawah ini: Desain rumah 6 x 12 sederhana minimalis 29. Desain rumah 6x12 1 lantai, contoh gambar denah & fasade denah rumah 3 kamar ukuran 6x12 terbaik dan terbaru | denah rumah …. Desain rumah dengan bentuknya minimalis diperkirakan pada tahun 92 telah tumbuh, tetapi belum sengetren sekarang. Desain denah rumah 3 kamar ukuran 6x12 tidak rumit. Dengan gambar desain desain rumah minimalis yang baik yaitu resolusi 1280x720, setidaknya dapat terlihat jelas guna memenuhi desain rumah yang sedang anda ingin ciptakan. Desain rumah 6 x 12 sederhana minimalis 29. 50 meter, 5x12, 5x10, 5x9, 6x9, 6x12, 6x6, 6x10, 6x9, 6x7, 6x5, 6*12, 6x8, 7x10, 7*9, dll Ruangan menjadi lebih efektif, efisien dan lebih fleksibel dengan ukuran yang lebih kecil dan tidak akan memakan tempat. Desain rumah sederhana 6×12 seperti namanya mempunyai ukuran lebar 6 meter dengan panjang 12 meter.hunian ini sangat cocok untuk anda yang mempunyai keluarga kecil. Desain dari rumah type ini juga tidak terlalu rumit, anda hanya membutuhkan beberapa bagian penting saja pada desain rumah ini. Desain rumah minimalis 2 lantai 6×12 memiliki ukuran sedikit lebih besar daripada tipe 6×9, biasanya dengan sedikit penambahan di bagian belakang.

2 rumah sederhana tropis minimalis. 40+ desain depan rumah ukuran 6x12 png. Koleksi denah rumah minimalis ukuran 6x12 meter 09. Desain saat ini rencana tersebut adalah tipe rumah 45 tahun, yang berarti bahwa bangunan memiliki berbagai 45 meter persegi. Rumah tropis ini menggunakan kusen kayu supaya terlihat alami.

Desain Rumah 6x12 2 Lantai Elegan Rhdesainrumah
Desain Rumah 6x12 2 Lantai Elegan Rhdesainrumah from rhdesainrumah.com
Jan 30 2019 7 contoh rumah minimalis yang mudah anda tiru kata rumah. Desain rumah type 60 model minimalis, sederhana, modern terbaru Desain yang tepat untuk lahan. Jika anda punya lahan berukuran 6×12 meter dan ingin membangun model rumah minimalis modern, nyaman, dan sederhana, maka desain rumah berikut ini mungkin bisa membantu anda. Desain rumah 6x12 1 lantai, contoh gambar denah & fasade denah rumah 3 kamar ukuran 6x12 terbaik dan terbaru | denah rumah …. Halo sahabat desain rumah sederhana di postingan kali ini saya mencoba berbagi 5 desain rumah ukuran 6x12 terpopuler, mudah mudahan desain ini bisa memberikan referensi dan inspirasi bagai sahabat desain rumah sederhana. Desain rumah dengan bentuknya minimalis diperkirakan pada tahun 92 telah tumbuh, tetapi belum sengetren sekarang. Salah satunya adalah mempersiapkan desainnya terlebih dahulu.

Dari kelima desain yang saya kumpulkan ini merupakan desain yang sangat populer di media sosial.

Berikut ini beberapa contoh desain rumah minimalis ukuran 6×12 yang dapat menjadi referensi dalam merealisasikan rumah idaman kita. Desain yang tepat untuk lahan. Salah satunya adalah mempersiapkan desainnya terlebih dahulu. Desain rumah minimalis modern 6x12 2 kamar tidur 1 lantai full …. 23+ desain rumah ukuran 6x12 meter yang wajib disimak!.denah lebar 6 meter gambar rumah idamancom via. Untuk penggunaan desain grafis, ukuran kertas foto menggunakan satuan pixel yang. Berikut adalah inspirasi desain rumah sederhana 6 x 12 m² lantai spesial untuk anda. Desain rumah sederhana murah di lahan ukuran 6x12, contoh kumpulan desain rumah minimalis simpel dengan harga bangun yang lebih terjangkau. 2 rumah sederhana tropis minimalis. Rumah yang ideal adalah rumah minimalis 2 lantai namun cukup untuk anggota keluarga yang terus bertambah. Desain dan denah rumah sederhana dengan biaya murah untuk ukuran : Rumah tropis ini menggunakan kusen kayu supaya terlihat alami. Terakhir adalah contoh renovasi desain rumah 6 x 12 yang tadinya hanya ada 2 kamar menjadi memiliki 3.

Desain rumah dengan bentuknya minimalis diperkirakan pada tahun 92 telah tumbuh, tetapi belum sengetren sekarang. 50 meter, 5x12, 5x10, 5x9, 6x9, 6x12, 6x6, 6x10, 6x9, 6x7, 6x5, 6*12, 6x8, 7x10, 7*9, dll Desain rumah 6 x 12 sederhana minimalis 29. Koleksi denah rumah minimalis ukuran 6x12 meter 07. Untuk penggunaan desain grafis, ukuran kertas foto menggunakan satuan pixel yang.

7 Denah Desain Rumah Sederhana 6x12 Pas Untuk Keluarga Kecil
7 Denah Desain Rumah Sederhana 6x12 Pas Untuk Keluarga Kecil from blogpictures.99.co
Desain dari rumah type ini juga tidak terlalu rumit, anda hanya membutuhkan beberapa bagian penting saja pada desain rumah ini. Desain dan denah rumah sederhana dengan biaya murah untuk ukuran : Halo sahabat desain rumah minimalis, di episode kali ini saya akan membagikan desain rumah minimalis sederhana 6x12 1 lantai, pada desain kali ini berada di lokasi karang satria rawa kalong tambun utara bekasi, bandung utara, bandung, jawa barat. Desain rumah minimalis mewah dengan kanopi minimalis. Jika kita membutuhkan ruang yang lebih banyak. Rumah yang ideal adalah rumah minimalis 2 lantai namun cukup untuk anggota keluarga yang terus bertambah. Jika anda memiliki sebidang 6 x 12 meter, dan ingin membangun rumah, maka desain rumah dapat membantu. Desain ini meiliki luas tanah 70m2 dan luas bangunan 50m2.

69 desain rumah minimalis ukuran 6x12.

Aug 04 2020 sahabat desain rumah minimalis kali ini saya akan membagikan denah rumah sederhana 3 kamar tidur di atas lahan seluas 6x12 pada desain kali ini kami mendapatkan tampak depan rumah dari fb grup kemudian kami mencoba mebuatkan alternatif denah dengan 3 kamar tidur di penataan dan pembagian ruangnya. Tanah dengan desain rumah sederhana 6x12 sangat ideal untuk hunian di perkotaan karena ukurannya pas tidak terlalu sempit dan juga tidak terlalu luas sehingga harganya tetap terjangkau. Konsep rumah sederhana dengan harga terjangkau, cocok untuk anda yang memiliki banyak anggota keluarga yang menginginkan sebuah hunian murah namun tetap nyaman, bagus dan elegan. Inspirasi desain rumah 6 x 12 minimalis selanjutnya ini terlihat sangat modern dengan bangunan berbentuk kotak dan menrapkan konsep desain rumah atap datar inspirasi desain rumah 6 x 12 minimalis 30. Desain rumah 9 x 12 simple ini mungkin bisa jadi inspirasi untuk kamu dalam membangun rumah di tanah seluar 9x12 meter desain rumah 9 x 12 simple 21. Kebanyakan desain nya seperti yang sudah ada sebelumnya, misalnya dengan 3 kamar tidur, 1 kamar mandi dan 1 dapur. Rumah yang ideal adalah rumah minimalis 2 lantai namun cukup untuk anggota keluarga yang terus bertambah. Ruangan menjadi lebih efektif, efisien dan lebih fleksibel dengan ukuran yang lebih kecil dan tidak akan memakan tempat. 40+ desain depan rumah ukuran 6x12 png. Berikut adalah inspirasi desain rumah sederhana 6 x 12 m² lantai spesial untuk anda. Karena kan tidak semua orang punya skill di bidang desain. Desain rumah sederhana murah di lahan ukuran 6x12, contoh kumpulan desain rumah minimalis simpel dengan harga bangun yang lebih terjangkau. 15+ inspirasi fasad rumah minimalis 2 lantai dengan atap limasan.